Huur:Joan Muyskenweg 40, 1114 AN Amsterdam-Duivendrecht - Foto
+10

Joan Muyskenweg 40 1114 AN Amsterdam-Duivendrecht € 155,-/m2/jr

  • Kantoor
  • Bouwjaar 1978
  • 2.095 m² vloeroppervlakte

Beschrijving

Omschrijving
MODERN MULTI-TENANT GEBOUW
Het gebouw ‘Ankestyn’ is eind jaren ‘70 ontwikkeld en is herkenbaar aan de geschakeerde gevel met gele panelen. Recent heeft het kantoorgebouw een hoogwaardige renovatie ondergaan waarmee het voldoet aan de huidige moderne eisen voor bedrijfsruimte. Het bedrijfsverzamelgebouw beschikt over drie liften, luxe toiletgroepen op elke verdieping en elke kantoorunit heeft een eigen pantry met vaatwasser en koelkast. Verder zijn de klimaatinstallaties recent vernieuwd en is er de mogelijkheid om ramen te openen. De gunstige ligging en moderne afwerking maakt ‘Ankestyn’ tot een gewilde kantoorlocatie.

DIVERSITEIT AAN BEDRIJFSRUIMTES
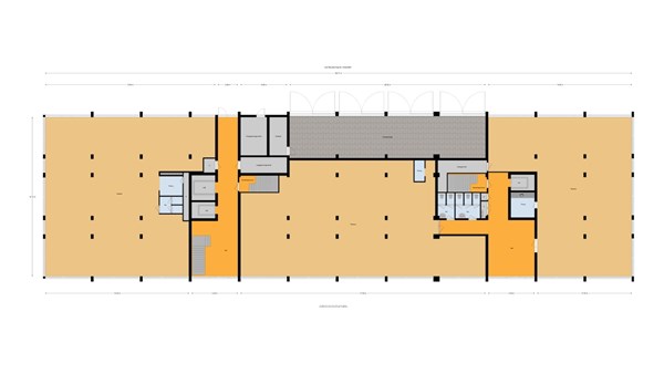
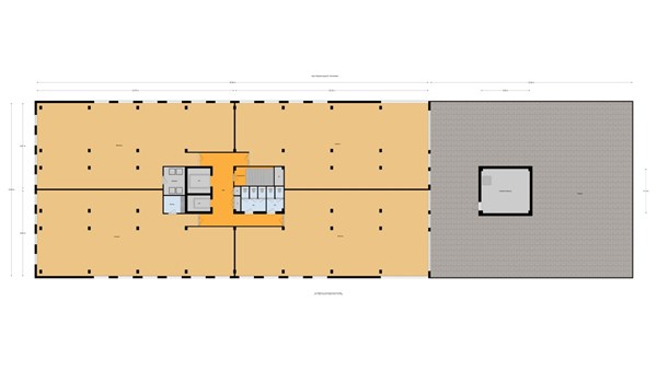
Ankestyn heeft moderne en lichte units te huur, in diverse oppervlaktes (VVO). Zo is er voor iedere ondernemer wel een geschikte bedrijfsruimte beschikbaar vanaf 78 m² tot 2.095 m² VVO, als volgt verdeeld:

BG: unit 749m2

1e verdieping: 78 m2
1e verdieping: 109 m2

2e verdieping: 356 m2
2e verdieping: 190 m2
2e verdieping: 162 m2

3e verdieping: 220 m2
3e verdieping: 231 m2

OMGEVING
Ankestyn is gelegen op het Amstel Business Park Zuid, een dynamische bedrijvenlocatie in Ouder-Amstel gelegen naast het nieuwe DPG Media hoofdkantoor.
Op loopafstand ligt het ‘Amstelkwartier’, een favoriet recreatiegebied voor vele Amsterdammers. Hier zijn diverse gezellige cafés en restaurants te vinden. Praktische voorzieningen als de Makro en de Sligro bevinden zich vlakbij. Deze combinatie van bedrijvigheid en recreatie binnen handbereik zorgt voor een bruisende werkomgeving.

HUURPRIJS
vanaf € 155,- per m² VVO per jaar te vermeerderen met BTW.

HUURTERMIJN
Nader overeen te komen.

OPLEVERINGSDATUM
In nader overleg.

BEREIKBAARHEID & PARKEREN
Uitstekend bereikbaar vanaf de A9, A10 en de A2. Met het OV prima te bereiken via tram 51 (halte Overamstel) en de metrolijnen 54 en 53 (halte Van der Madeweg). Parkeren is mogelijk op het openbare (betaalde) parkeerterrein naast het pand. Er zijn laadstations aanwezig. Bij de gemeente Amsterdam Ouder-Amstel kunt u (bedrijfs-) parkeervergunningen aanvragen.

Voorbehoud
De vermelde informatie is van algemene aard en is geheel vrijblijvend en is niet meer dan een uitnodiging om in onderhandeling te treden. Aan de inhoud van deze informatie kunnen geen rechten worden ontleend.

Voor informatie
Lanting Vastgoed Advies B.V.
Assumburg 152
1081 GC Amsterdam
020 782 2020

Kaart

Kenmerken

Overdracht

Referentienummer
00010
Aanvaarding
Direct
Aangeboden sinds
Woensdag 24 juli 2024
Laatste wijziging
Maandag 16 september 2024

Bouw

Type object
Kantoor
Soort bouw
Bestaande bouw
Bouwperiode
1978

Oppervlaktes en inhoud

VVO
2.095 m²
In units vanaf
78 m²

Indeling

Aantal bouwlagen
5

Media

Foto's

Plattegronden