Huur:Burgemeester de Vlugtlaan 51, 1063 BG Amsterdam - Foto
+5

Burgemeester de Vlugtlaan 51 1063 BG Amsterdam € 1.875,- /mnd

  • Kantoor
  • Bouwjaar 1953
  • 86 m² vloeroppervlakte

Beschrijving

REPRESENTATIEVE BEDRIJFSRUIMTE TE HUUR AAN DE BURGEMEESTER DE VLUGHTLAAN 51 IN AMSTERDAM NIEUW-WEST

Aan de Burgemeester de Vlughtlaan 51 in Amsterdam Nieuw-West komt per oktober/november een aantrekkelijke bedrijfsruimte beschikbaar. Deze locatie is bijzonder geschikt voor ondernemers die op zoek zijn naar een representatieve en praktische werkplek op een goed bereikbare locatie. De ruimte is gelegen op de begane grond, beschikt over een entree aan de voorzijde en een achteruitgang en valt op door de brede pui met dubbele glazen deuren en een groot raam aan de straatzijde.

De bedrijfsruimte is onderdeel van een breder renovatieproject dat zich momenteel in de afrondende fase bevindt. In dit kader is onder andere de volledige pui vernieuwd, wat zorgt voor een frisse, moderne uitstraling en uitnodigende uitstraling. Deze vernieuwing draagt niet alleen bij aan het comfort van de gebruikers, maar versterkt ook de zichtbaarheid en representativiteit van de ruimte aan de straatzijde.

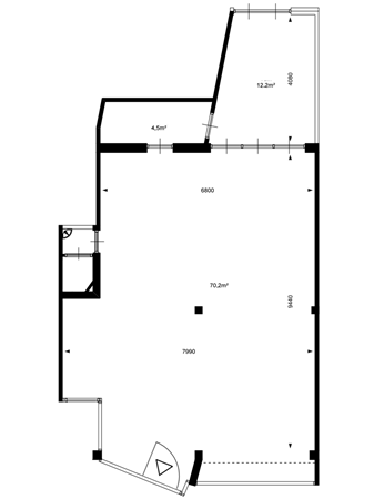
Met een totaaloppervlakte van circa 86 m² en een hoog plafond biedt deze ruimte een ruimtelijk en licht geheel dat zich leent voor uiteenlopende invullingen. De goede zichtbaarheid vanaf de straat maakt dit een zeer aantrekkelijke plek voor ondernemers die hun klanten goed willen ontvangen.

De Burgemeester de Vlughtlaan is een belangrijke doorgaande weg in Amsterdam Nieuw-West, met een mix van winkels, horeca en bedrijven. De bereikbaarheid is uitstekend, zowel met de auto als met het openbaar vervoer. Station Sloterdijk ligt op korte afstand, en ook de A10 is snel bereikbaar via de Haarlemmerweg of de Jan van Galenstraat.

Huurprijs
€ 1.875,00 per maand excl. BTW en servicekosten.

Servicekosten
Nader te bepalen.

Oppervlakte
Ca. 86 m² gelegen op de begane grond, met één entree aan de voorzijde en een achteruitgang.

Opleveringsniveau
De ruimte wordt casco opgeleverd, voorzien van een fraaie pui met dubbele glazen deuren en een hoog plafond. Aansluitingen zijn tot in de meterkast aanwezig, wat ondernemers de vrijheid geeft om de ruimte naar eigen inzicht in te richten.

Bereikbaarheid met eigen vervoer
De locatie is goed bereikbaar met de auto. De ring A10 is binnen enkele minuten bereikbaar via de Jan van Galenstraat of de Haarlemmerweg.

Bereikbaarheid met openbaar vervoer
Op loopafstand bevinden zich diverse haltes voor tram en bus. Station Sloterdijk is bovendien op korte afstand gelegen en zorgt voor uitstekende regionale verbindingen.

Parkeren
Parkeren is mogelijk in de straat tegen betaling.

Bestemmingsplan
De bedrijfsruimte aan de Burgemeester de Vlughtlaan 51 valt binnen het bestemmingsplan 'Gemengd - 1':
- Detailhandel
- Dienstverlening
- Kantoren
- Afhaalpunten t.b.v. e-commerce
- Culturele voorzieningen
- Vrijetijdsvoorzieningen
- Maatschappelijke voorzieningen (met uitzondering van religieuze voorzieningen)

Zie omgevingsloket voor meer informatie: omgevingswet.overheid.nl

Huurbetaling
Maandelijks vooruit te betalen.

Huurtermijn
5 (vijf) jaren met een verlengingsoptie van 5 (vijf) jaren; opzegtermijn van 12 (twaalf) maanden. Afwijkende huurtermijnen in overleg.

Oplevering
In overleg. Verwachting is oktober/november 2025.

Huurindexatie
De huurprijs wordt jaarlijks geïndexeerd, voor het eerst één jaar na huuringangsdatum, op basis van het prijsindexcijfer volgens de consumentenprijsindex (CPI) reeks Alle Huishoudens (2015 = 100) gepubliceerd door het Centraal Bureau voor de Statistiek (CBS).

Huurovereenkomst
Op basis van het standaard huurcontract, zoals opgesteld door de Raad voor Onroerende Zaken (ROZ) model.

Zekerheidsstelling
Een bankgarantie of waarborgsom ter hoogte van drie maanden huur, te vermeerderen met BTW + eventuele servicekosten met BTW.

Voorbehoud
De vermelde informatie is van algemene aard en is geheel vrijblijvend en is niet meer dan een uitnodiging om in onderhandeling te treden. Aan de inhoud van deze informatie kunnen geen rechten worden ontleend.

Voor informatie
Lanting Vastgoed Advies B.V.
Assumburg 152
1081 GC Amsterdam
020 782 2020

Kaart

Kenmerken

Overdracht

Referentienummer
00035
Huurprijs
€ 1.875,- per maand
Aanvaarding
In overleg
Aangeboden sinds
Maandag 28 juli 2025
Laatste wijziging
Donderdag 4 december 2025

Bouw

Type object
Kantoor
Soort bouw
Bestaande bouw
Bouwperiode
1953

Oppervlaktes en inhoud

VVO
86 m²
In units vanaf
86 m²

Indeling

Aantal bouwlagen
1

Media

Foto's

Plattegronden